Lagerraum in Mitten von Aarau zu vermieten!
Etage3. Untergeschoss
Baujahr1966
Preis des ObjektsCHF 142.-/Monat + NK
Ort
Kasinostrasse 29, 5000 AarauMiete
Mietpreis: CHF 142.- /Monat
Nebenkosten: CHF 15.- /Monat (nicht enthalten)
Bruttomiete: CHF 157.- Monat
Angaben
Referenz
81301.01.930170
Verfügbarkeit
Sofort
Baujahr
1966
Etage
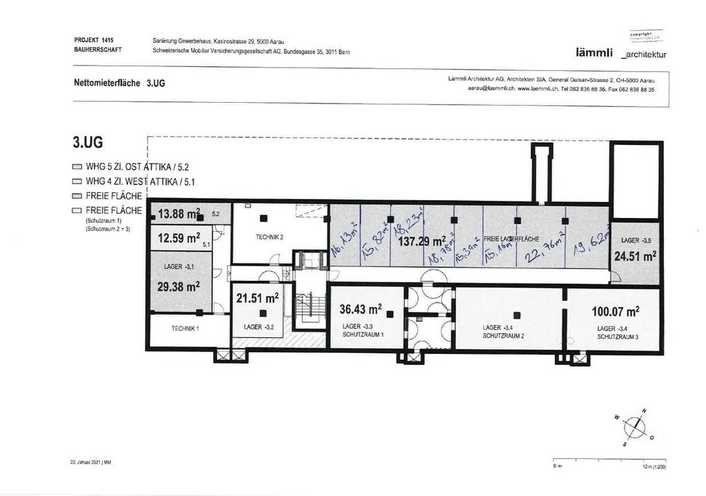
3. Untergeschoss
Nutzfläche
19 m²
Nebenkosten
CHF 15.-/Monat (Nicht enthalten)
Beschreibung
Mitten im Zentrum von Aarau und nur fünf Gehminuten vom Bahnhof entfernt, vermieten wir per 1. April 2026 einen Lagerraum (18.78m2) im 3. Untergeschoss. Der Lagerraum ist mit einem Lift erschlossen.
Haben wir Ihr Interesse geweckt? Gerne zeigen wir Ihnen die Lagerfläche vor Ort.
Haben wir Ihr Interesse geweckt? Gerne zeigen wir Ihnen die Lagerfläche vor Ort.
Eigenschaften
Innenbereich
- Lift
Distanzen
Öffentliche Verkehrsmittel
20 m
Autobahn
1 km
Kindergarten
1.1 km
Primarschule
1.2 km
Sekundarschule
700 m
Geschäfte
10 m




