SENIOR STUDIO SERVICED APARTMENT - HOCHWERTIGE EINZELNEINZELNIGE STUDIO-WOHNUNG IM GESUCHTEN VORSTADTGEBIET SEEFELD
Ort
Baurstrasse 29 , 8008 Zürich, Switzerland, 8008 ZürichMiete
Angaben
Beschreibung
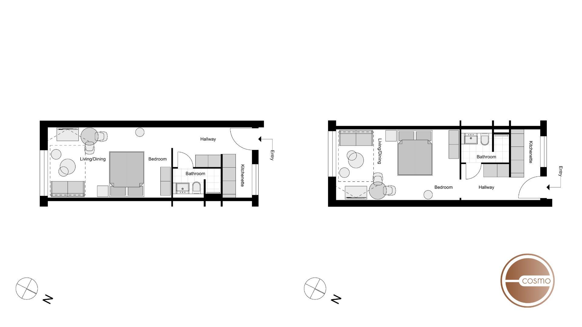
Offene Grundrisse mit vielen durchdachten Details und einem zusätzlichen Komfortfaktor.
Die Designküchen, die schräg zur Eingangstür angeordnet sind, sind komplett mit einem grossen Kühlschrank, einem Backofen und einer Spülmaschine ausgestattet und wirken durch die clevere Raumaufteilung eher wie ein Apartment als wie ein Studio. Der Wohn- und Schlafbereich mit echtem Parkettboden bietet viel Platz zum Wohnen, Arbeiten, Entspannen und Geniessen - ob auf dem bequemen Boxspringbett oder auf dem Sofa. Alle Möbel sind auf die Bedürfnisse der Gäste zugeschnitten und bieten viel Stauraum. Apropos Sofa: Es kann auch im Handumdrehen in ein zusätzliches Bett umgewandelt werden.
| Schicht:
Unsere Studios befinden sich im Herzen von Seefeld, einem der begehrtesten Stadtteile, und bieten eine perfekte Mischung aus urbanem Komfort und ruhiger Wohnatmosphäre. Nur wenige Schritte entfernt finden Sie eine dynamische Auswahl an Geschäften, eine Vielzahl an Restaurants und ein reichhaltiges Kulturangebot, alles vor dem Hintergrund malerischer Parks und ruhiger Uferzonen. Ob Sie nun die belebten Strassen erkunden oder die friedliche Atmosphäre Ihres Zuhauses geniessen, diese privilegierte Lage sorgt dafür, dass alles, was Sie benötigen, in Reichweite ist.
| Ausstattung:
- Die Wohnung kombiniert moderne Ästhetik im Stil von WEST "Park Avenue" oder SOUTH "mexikanisch" mit gedämpften Farbtönen und hochwertigen Materialien und schafft so ein elegantes und gemütliches Ambiente.
- Die offene Raumgestaltung maximiert den Platz und die Funktionalität und sorgt für einen sanften Übergang zwischen Wohnzimmer, Esszimmer und Schlafzimmer.
- Die Wohnung ist mit den neuesten Geräten ausgestattet, darunter eine Induktionskochplatte, ein integrierter Backofen und ein elegantes Kühlschrank-Design, ergänzt durch elegante Steintischplatten.
- Das Badezimmer verfügt über eine italienische Dusche mit hochwertigen Armaturen.
- Die grossen Fenster sorgen für viel Tageslicht und verstärken die Wärme und Atmosphäre des Raums.
- Die Wohnung ist mit einem modernen Smart-TV ausgestattet, der Ihnen Zugang zu einer Vielzahl von Streaming-Diensten und digitalem Inhalt bietet, sodass Sie Ihre Lieblingsserien und -filme bequem auf Ihrem Sofa geniessen können.
| Alles inklusive:
- Die Miete beinhaltet alle Nebenkosten wie Wasser, Strom und Heizung
- Voll ausgestattete Wohnung mit hochwertigem Design und charmanten Details
- Wöchentliche Reinigung der gesamten Wohnung, inklusive Wechsel der Handtücher und Entsorgung des Mülls sowie Wechsel der Bettwäsche alle zwei Wochen.
- Hochgeschwindigkeits-WLAN-Internetzugang für ungestörtes Arbeiten und Streaming
- 7 Tage die Woche telefonisch erreichbar.
- Premium-TV-Paket Zattoo mit 250 Kanälen
- Ein Parkplatz kann bei Bedarf für CHF 300,00 zzgl. 8,1 % MwSt. gemietet werden.
- Nutzung der im Untergeschoss gelegenen Waschküche mit modernen Waschmaschinen und Trocknern
- Nutzung des dazugehörigen Kellerabstellraums
- Vollständige Endreinigung für einen stressfreien Umzug.
* Die Miete beinhaltet die Endreinigung, jedoch ohne gesetzliche Mehrwertsteuer von 3,8 %.
Eigenschaften
Aussenbereich
- Parkplatz
Innenbereich
- Lift
Ausstattung
- Geschirrspüler
- Waschmaschine














