Stadtzentrum – Bd Helvétique – 6.5 pcs, von ca.149m2 im 1. Stock
Zimmer6.5
Wohnfläche149 m²
Etage1. Stock
Preis des ObjektsCHF 6'680.-/Monat
VerfügbarkeitSofort
Ort
Boulevard Helvétique, 1207 GenèveMiete
Mietpreis: CHF 6'680.- /Monat
Angaben
Referenz
4340.12021.06 - Boulevard Helvétique
Verfügbarkeit
Sofort
Badezimmer
2
Zimmer
6.5
Etage
1. Stock
Wohnfläche
149 m²
Beschreibung
Text aus französisch übersetzt, siehe Original
Originaltext in französisch, Übersetzen in Deutsch.
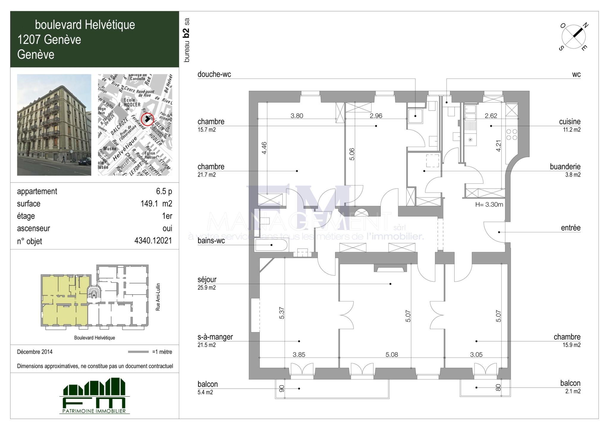
In einer der begehrtesten Lagen von Genf, nur wenige Schritte vom Parc de l’Observatoire, dem Rond-Point de Rive und dem See entfernt, verkörpert dieses prächtige, charakteristische Apartment klassische Eleganz und modernen Komfort. Das 6,5-Zimmer-Apartment mit einer Wohnfläche von ca. 149 m²
befindet sich im 1. Stock eines sehr gepflegten und sicheren Altbau-Mehrfamilienhauses und besticht durch grosszügige Räumlichkeiten, bemerkenswerte Helligkeit und authentischen Charme
. Der grosszügige Eingangsbereich verteilt die Wohn- und Schlafbereiche harmonisch.
Der Wohnbereich besteht aus:
• einem wunderschönen, hellen Wohnzimmer mit dekorativem Kamin und Zugang zu einem Balkon,
• einem eleganten Esszimmer, das ebenfalls einen Aussenzugang hat, • einer komplett ausgestatteten und funktionalen, separaten
Küche.
Der Schlafbereich bietet:
• drei ruhige, grosszügige Schlafzimmer,
• ein Badezimmer,
• eine Duschkabine,
• sowie ein Gäste-WC.
Eine private Waschküche rundet dieses Angebot ab und bietet in der Innenstadt seltenen Komfort. Zusätzliche
Vorteile
• Charakter des Altbaus (hohe Decken, grosszügige Räume, elegante Aufteilung)
• Doppelbalkon
• Aussergewöhnliche Helligkeit
• SICHERES Gebäude mit Lift
• Keller inklusive
Mietbedingungen
• Miete: CHF 6 250.- / Monat
• Nebenkosten: CHF 430.- / Monat
• Verfügbarkeit: sofort
• Miete: unmöbliert
Für weitere Informationen oder eine Besichtigung kontaktieren Sie uns bitte per E-Mail unter location@fm-management.ch und geben Sie Ihre Telefonnummer an oder rufen Sie uns an unter 022.312.13.35.
Nach der Besichtigung und bei Interesse an der Miete des Objekts laden Sie bitte das Anmeldeformular «Anfrage zur Miete eines Apartments» herunter, das Sie unter dem Reiter «Formulare» finden, füllen es aus und senden es mit den beiliegenden Unterlagen an folgende Adresse: location@fm-management.ch.
befindet sich im 1. Stock eines sehr gepflegten und sicheren Altbau-Mehrfamilienhauses und besticht durch grosszügige Räumlichkeiten, bemerkenswerte Helligkeit und authentischen Charme
. Der grosszügige Eingangsbereich verteilt die Wohn- und Schlafbereiche harmonisch.
Der Wohnbereich besteht aus:
• einem wunderschönen, hellen Wohnzimmer mit dekorativem Kamin und Zugang zu einem Balkon,
• einem eleganten Esszimmer, das ebenfalls einen Aussenzugang hat, • einer komplett ausgestatteten und funktionalen, separaten
Küche.
Der Schlafbereich bietet:
• drei ruhige, grosszügige Schlafzimmer,
• ein Badezimmer,
• eine Duschkabine,
• sowie ein Gäste-WC.
Eine private Waschküche rundet dieses Angebot ab und bietet in der Innenstadt seltenen Komfort. Zusätzliche
Vorteile
• Charakter des Altbaus (hohe Decken, grosszügige Räume, elegante Aufteilung)
• Doppelbalkon
• Aussergewöhnliche Helligkeit
• SICHERES Gebäude mit Lift
• Keller inklusive
Mietbedingungen
• Miete: CHF 6 250.- / Monat
• Nebenkosten: CHF 430.- / Monat
• Verfügbarkeit: sofort
• Miete: unmöbliert
Für weitere Informationen oder eine Besichtigung kontaktieren Sie uns bitte per E-Mail unter location@fm-management.ch und geben Sie Ihre Telefonnummer an oder rufen Sie uns an unter 022.312.13.35.
Nach der Besichtigung und bei Interesse an der Miete des Objekts laden Sie bitte das Anmeldeformular «Anfrage zur Miete eines Apartments» herunter, das Sie unter dem Reiter «Formulare» finden, füllen es aus und senden es mit den beiliegenden Unterlagen an folgende Adresse: location@fm-management.ch.











