×
Picture 1
Picture 2
Picture 3
Picture 4
Picture 5
Picture 6

CENTRAL, MODERN AND ELEGANT

Rooms3
Floor4th floor
Object PriceCHF 1,300.-/month
PDF Dossier
Add to favoritesRemove from favorites

Localisation

Sur demande, 3960 Sierre

Rent

Rent price: CHF 1,300.- /month
Charges: not included

Characteristics

Reference
1400628
Availability
To agree
Rooms
3
Floor
4th floor
Useful surface
78 m²

Description

Text translated from german, see original
Original text in german, translate to English.
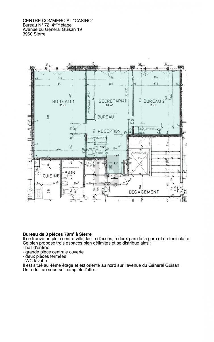
Installez votre activité au cur de Sierre, dans des bureaux pensés pour les professionnels qui veulent allier confort et visibilité. Lumineux et accessibles en ascenseur, ces locaux mettent votre entreprise en valeur grâce à leur emplacement central. À deux pas des commodités et des transports publics, vous facilitez le quotidien de votre équipe comme celui de vos clients.

This BETTERHOMES offer is characterized by the following advantages:
- located in the city center

- accessible by elevator

- bright offices

- visibility of the company

- easy access to amenities

- proximity to public transport

- pleasant work environment

- etc., etc., etc. ...


Interested? Contact us for a viewing without obligation – online viewing also possible!

Nothing that matches? You will find more than 2,000 other objects on: www.betterhomes.ch – The Swiss specialist for real estate transactions. Do you

have a property to sell?
Benefit from our expertise: https://www.betterhomes.ch/fr/profiter

Do you want to know the value of your property?
Find out its value now thanks to our free, immediate and non-binding valuation!
https://www.betterhomes.ch/fr/knowledge/estimation


More details
Location:
City center Building condition: good

Bathrooms: 1 (1x WC / Lavabo) Public
transport: train station, 250 m
School: School, 550 m
Shops: grocery store, 10 m
Installez votre activité au cur de Sierre, dans des bureaux pensés pour les professionnels qui veulent allier confort et visibilité. Lumineux et accessibles en ascenseur, ces locaux mettent votre entreprise en valeur grâce à leur emplacement central. À deux pas des commodités et des transports publics, vous facilitez le quotidien de votre équipe comme celui de vos clients.

Cette offre de BETTERHOMES se caractérise par les avantages suivants:
- situe au centre-ville

- accessible en ascenseur

- des locaux lumineux

- visibilité de l'entreprise

- accès facile aux commodités

- proximité des transports publics

- cadre de travail agréable

- etc., etc., etc. ...


Intéressé? Contactez-nous pour une visite sans engagement - visite en ligne également possible!

Rien qui correspond? Vous trouverez plus de 2'000 autres objets sur: www.betterhomes.ch - Le spécialiste suisse des transactions immobilières.

Vous avez un bien immobilier à commercialiser?
Profitez de notre savoir-faire: https://www.betterhomes.ch/fr/profiter

Vous souhaitez connaître la valeur de votre bien immobilier?
Découvrez sa valeur dès maintenant grâce à notre estimation gratuite, immédiate et sans engagement!
https://www.betterhomes.ch/fr/knowledge/estimation


Plus détails
Situation: Centre ville
Etat du bâtiment: bon

Salles de bain: 1 (1x WC / Lavabo)
Transport publics: gare, 250 m
Ecole: Etablissement scolaire, 550 m
Commerces: denner, 10 m

Conveniences

Inside conveniences
  • Lift/elevator