Residenza Victoria: Appartamento di 2,5 locali
Locali2
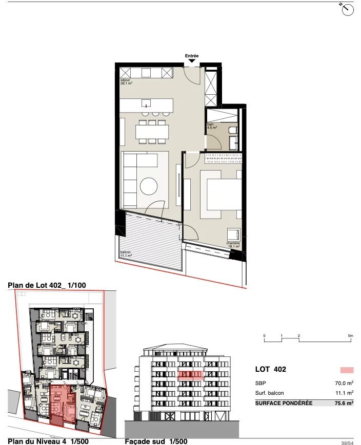
Superficie abitabile70 m²
Piano4° piano
Prezzo dell'oggettoCHF 675'000.-
DisponibilitàImmediata
Posizione
1919 MartignyDati generali
Riferimento
85421764
Disponibilità
Immediata
Anno costruzione
2027
Locali
2
Piano
4° piano
Superficie abitabile
70 m²
Descrizione
Testo tradotto da francese, vedi originale
Testo originale in francese, tradurre in Italiano.
LOTTO 402 – Appartamento di oltre 75 m² situato al 4° piano di un edificio contemporaneo. Idealmente situato nel cuore di Martigny, a pochi passi dalla piazza centrale e da tutti i servizi.
Nel prezzo è compresa una cantina al piano interrato.
1 o 2 posti auto per veicoli disponibili in garage sotterraneo, a pagamento, a discrezione dell’acquirente.
5 posti per moto disponibili anche al piano interrato.
Prezzo posto auto: CHF 60’000.- l’unità
Prezzo posto moto: CHF 25’000.- l’unità
Comodità
Esterno
- Balcone/i
Interno
- Ascensore


