Appartamento 4.5 locali a Vétroz
Posizione
Route cantonale 199, 1963 VétrozDati generali
Descrizione
Non perdete questa rara opportunità di investire in un nuovo alloggio di qualità a Vétroz, in una residenza ideale per le famiglie e per chiunque cerchi un ambiente tranquillo e di qualità.
La residenza Les Ailes si trova in un ambiente tranquillo tra montagne, vigneti, campi e zona residenziale.
Il progetto immobiliare, che inizierà nel gennaio 2025, è composto da 3 edifici, di cui 1 di 15 appartamenti, 1 di 9 unità abitative e un piccolo edificio di un solo piano con 2 unità di 3,5 locali.
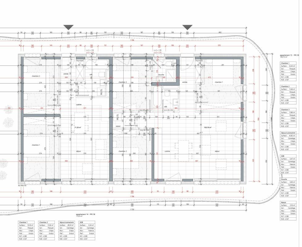
Questa promozione offre alloggi che vanno dal monolocale al 4,5 locali con spazio esterno privato, distribuiti su 3 livelli.
Questa costruzione è dotata delle più recenti infrastrutture energetiche: pompa di calore abbinata a un impianto fotovoltaico, che garantisce un consumo energetico ottimale nel rispetto delle norme energetiche vigenti.
Design essenziale e contemporaneo per questo nuovo quartiere residenziale composto da 22 appartamenti su 3 piccoli edifici a 3 piani, simili per materiale, colore e forma, che creano un'unità e un'identità di insieme. La bassa altezza desiderata degli edifici si integra perfettamente con le ville circostanti, creando un rapporto proporzionato con il quartiere.
COMPOSIZIONE DEL LOTTO (4,5 locali, al 1° piano):
- Ingresso con armadio a muro
- 1 ripostiglio - lavanderia
- Bagno
- 2 camere da letto
- 1 camera da letto principale con bagno privato
- 1 zona giorno composta da cucina aperta su sala da pranzo e soggiorno
- Terrazza di oltre 39 m2
CARATTERISTICHE
- Orientamento sud.
- Appartamento trasversale.
- Tutti gli appartamenti godono di ampi spazi esterni: terrazze con giardini privati per i piani terra, ampi balconi coperti per i piani 1° e attici.
- Tutte le terrazze-balconi sono parzialmente coperte.
- Costruzione tradizionale a regola d'arte, cemento armato, isolamento perimetrale, tutto secondo le norme ISO vigenti.
- Design moderno dell'insieme che lascia spazio a una bella vegetazione e a numerosi lucernari.
- Tutti gli appartamenti sono trasversali.
- Triplo vetro.
- Serramenti scorrevoli a sollevamento.
- Tende elettriche su richiesta (in plusvalore).
- Riscaldamento a pavimento con PAC.
- Installazione di pannelli fotovoltaici.
- Contatori separati per acqua ed elettricità.
- Posto per colonna di lavaggio in ogni appartamento, nessuna lavanderia comune.
- Possibili modifiche su richiesta.
- Finiture a scelta.
Per maggiori informazioni o per una visita in loco, sono a vostra disposizione. Non esitate a contattarmi al 079 576 70 71, sarò lieto di rispondervi.
!!! Trovate tutti i nostri immobili su www.amma.immo !!!
Comodità
- Autostrada di accesso: 4 km
- Stazione CFF Ardon o Conthey: 1.8 km
- Fermata autobus a 100 metri
- Negozi e servizi nelle vicinanze
- Zona commerciale di Conthey: 2 km
- Asilo nido, scuola dell'infanzia, scuole comunali
Esterni
- Cantina privata inclusa.
- Parco giochi per bambini.
- Numerose piazzole per visitatori all'esterno.
- Ampio parcheggio sotterraneo (52 posti) con possibilità di installare una colonnina di ricarica per auto elettriche (su richiesta).
- Le piazzole del parcheggio sotterraneo sono disponibili a pagamento al seguente prezzo:
- 1 posto CHF 35’000.-
- 2 posti CHF 65’000.-
- 3 posti CHF 85’000.-
Note
Calcolo delle superfici secondo le norme valesiane in abitabile lordo, ponderato degli esterni.
Comodità
Esterno
- Balcone/i
- Garage
Vista
- Montagne






















