Ultima possibilità: Appartamento di 3,5 locali in stile moderno nel progetto di nuova costruzione «Frohegg»
Posizione
Froheggstrasse, 9545 WängiDati generali
Descrizione
Frohegg – attraente per vivere
www.frohegg-waengi.ch
Il quartiere Frohegg è composto da due edifici plurifamiliari e da una casa bifamiliare situata in Froheggstrasse a Wängi. Grazie alla sua posizione centrale, nel cuore del paese, i negozi di prima necessità sono raggiungibili a piedi.
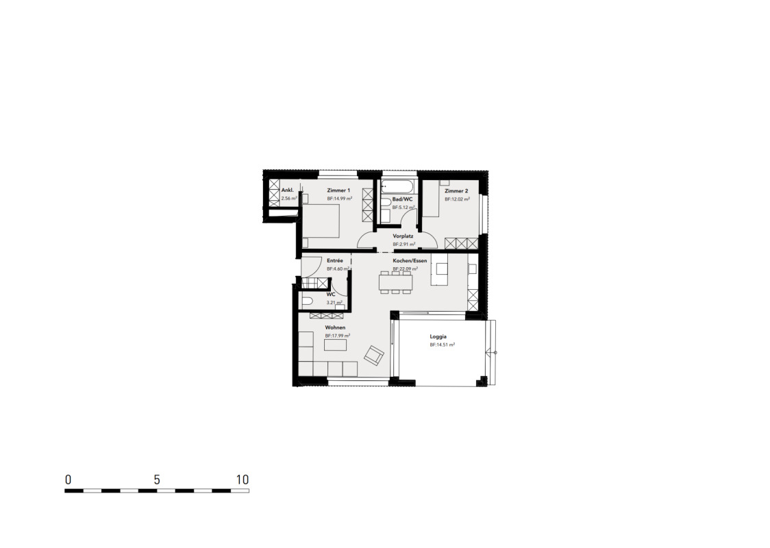
Le case residenziali combinano l’architettura tradizionale con un’abitazione moderna, soddisfacendo così le elevate esigenze dei futuri abitanti. Grazie all’orientamento consapevole dei corpi di fabbrica, al centro si crea una sorta di piazza del paese con spazio sufficiente per garantire la privacy.
I piani ben studiati sono facili da arredare e le finestre lasciano entrare molta luce all’interno degli edifici. Ogni appartamento dispone di un proprio locale cantina/lavanderia. Dalla comune autorimessa sotterranea si accede direttamente agli edifici residenziali. Le aree verdi sono ricche di vegetazione.
Il progetto ha suscitato il vostro interesse? Visitateci su http://www.frohegg-waengi.ch dove troverete ulteriori informazioni sul progetto, inclusa la documentazione e la lista dei prezzi. Saremo lieti di incontrarvi!
Comodità
Dintorni
- Bambini benvenuti
Esterno
- Calmo/tranquillo
- Parcheggio
- Garage
Interno
- Accesso persone disabili
- Ascensore
Dotazione
- Lavatrice
- Asciugatrice
Stato
- Come nuovo
Luce del sole
- Ottimale














