VALLES / Sono "VICTORIA" Magnifica villa da costruire 5.5 pces di 232 m² in vendita
Posizione
1950, 1950 SionDati generali
Descrizione
1° RETE IMMOBILIARE DEL VALLESE ®...................SWISS SUN VALAIS ®
.
.
VISIBILITÀ GLOBALE
IL VOSTRO AGENTE SOLIDALE
CREATORE DI "COPERTINE"®
.
.
PER COSTRUIRE R1* O R2* O PER RENDIMENTO LOCATIVO
.
.
ONORIAMO LA PRESENTAZIONE DI "VICTORIA": SONO UNA BELLA VILLA INDIVIDUALE DA COSTRUIRE DI 5.5 PIANI, 232.08 MQ: 205.53 MQ + 37 MQ DI SUPERFICIE UTILE + 82 MQ DI TERRAZZO O SUPERFICIE PAVIMENTATA, SITUATA IN VALLESE SU UN TERRAZZO A VOSTRA SCELTA.
.
VISIONATE LA VISITA VIRTUALE CLICCANDO SU:
VICTORIA
.
.
PER SAPERNE DI PIÙ SULLA MIA CAPITALE, CLICCATE SUL LINK DEL NOSTRO COMMONLIST:
SION
.
.
BENVENUTI IN VALLESE, UNO DEI CANTONI PIÙ ADATTI A VIVERE. QUESTO CANTONE È MOLTO APPREZZATO PER IL CLIMA TEMPERATO, LE MONTAGNE E LA CALDURA DEI SUOI ABITANTI.
IL MIO CANTONE DI 340’000 ABITANTI È PRINCIPALMENTE ABITATO NELLA PLAINA DELLA VALLE DEL RENO, MOLTO ATTIRANTE PER UN GRAN NUMERO DI FAMIGLIE.
L'ECONOMIA È PARZIALMENTE DIPENDENTE DAL TURISMO; LA FISCALITÀ RAGIONEVOLE FAVORISCE UN'AMPIA RETE DI IMPRESE.
SONO "VICTORIA", UNA BELLA VILLA DA COSTRUIRE, CON UN'ARCHITETTURA STUDIATA PER IL VOSTRO MASSIMO CONFORTO IN UN QUARTIERE CHE SOGNASCO RESIDENZIALE E PIÙ CALMO.
SONO COMPOSTA DA 2 PIANI CON TETTO A 2 PENDII.
VERRÒ COSTRUITA CON MATERIALI DI PRIMA QUALITÀ E CON IL PIÙ GRANDE SACRIFICIO DEI DETTAGLI.
VORREI POTER RENDERE FELICE UNA BELLA FAMIGLIA PER GODERE DEI MIEI SPAZI PIÙ AGREDIENTI.
.
.
COME ACQUISTARE LA VOSTRA VILLA IN VALLESE? PER SAPERNE DI PIÙ, cliccate sul link:
ACQUISTO VILLA
.
.
LA MIA DISTRIBUZIONE È LA SEGUENTE:
.
Al piano terra:
.
* Ingresso / Armadi a muro / Disimpegno
* Cucina attrezzata con accesso alla terrazza
* Spazio pranzo con accesso al prato
* Spazio soggiorno con accesso alla terrazza
* Camera
* Bagno con doccia / WC / Lavandino
* Locale tecnico / Lavanderia
* Economato
* Scala / Disimpegno
* Garage / Porta auto.
* Terrazza coperta
.
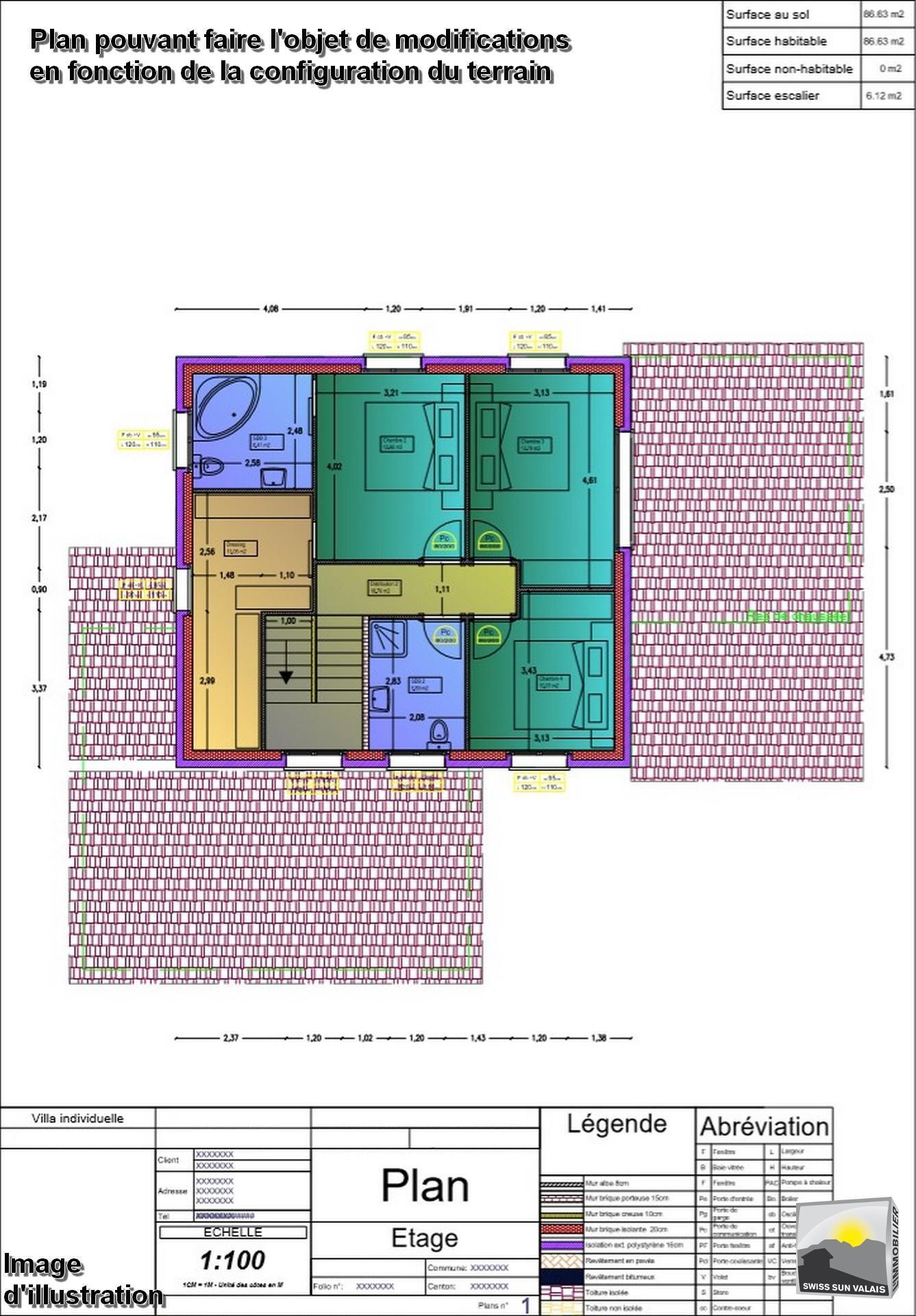
Al piano superiore:
* Scala / Disimpegno
* Due camere
* Bagno con doccia / WC / Lavandino
* Suite padronale / Bagno con vasca / WC / Spogliatoio
.
Offro inoltre le seguenti comodità:
.
* Posto auto
* Terrazza coperta
* Pavimentazione e sistemazione degli spazi esterni
* Belli spazi erbosi
.
Le mie particolarità:
* Prezzo indicato SENZA IL TERRENO (quindi sarei disponibile a costruire su un terreno di vostra scelta)
* Finiture a scelta del locatario
* Vendita per R1*, R2* o rendimento locativo
* Riscaldamento con pompa di calore con distribuzione a pavimento
* Pavimenti in parquet / piastrelle
* Isolamento perimetrale 16 cm
* Cucina a partire da CHF 20’000.-
* Costi di allacciamento: CHF 25’000.- a 30’000.- oltre al prezzo indicato
* Possibilità di modificare i piani
* Possibilità di scegliere opzioni o un altro modello di casa
.
Il mio finanziamento:
Per acquistarla come seconda casa, i vostri fondi propri indispensabili saranno di: CHF 208’000.- (+ Terreno)
Per acquistarla come prima casa, i vostri fondi propri indispensabili saranno di: CHF 141’000.- (+ Terreno)
.
Disponibilità: immediata
Preavviso per la visita: 48H00
.
Citazione:
Se lo puoi sognare, puoi farlo
(Walt Disney)
.
Come ottenere una STIMA GRATUITA? Per SAPERNE DI PIÙ, cliccate sul link:
STIMA GRATUITA
.
.
Saremo lieti di organizzare per voi una bella visita.
.
Al ricevimento dei vostri dati personali (nome, cognome, indirizzo postale, n. di cellulare) verrà trasmesso il dossier di vendita a SWISS SUN VALAIS ®.®
Tutte le visite interne ed esterne di un immobile sotto mandato SWISS SUN VALAIS ® possono essere effettuate solo in presenza di un rappresentante di SWISS SUN VALAIS.®
Qualsiasi tentativo di contattare direttamente i proprietari è inutile e rappresenta una perdita di tempo. Essi desiderano che la vendita sia gestita da un esperto immobiliare.
.
Copyright © Tutti i diritti riservati
informazioni non vincolanti.
.
R1* o 2*: residenza principale o secondaria, PAC*: pompa di calore
Proprietà n° 6109


























