Bello appartamento nel cuore di Champel di fronte al Parco Bertrand
Posizione
Route de Florissant 62, 1206 GenèveAffitto
Dati generali
Descrizione
Bello appartamento nel cuore di Champel di fronte al Parco Bertrand
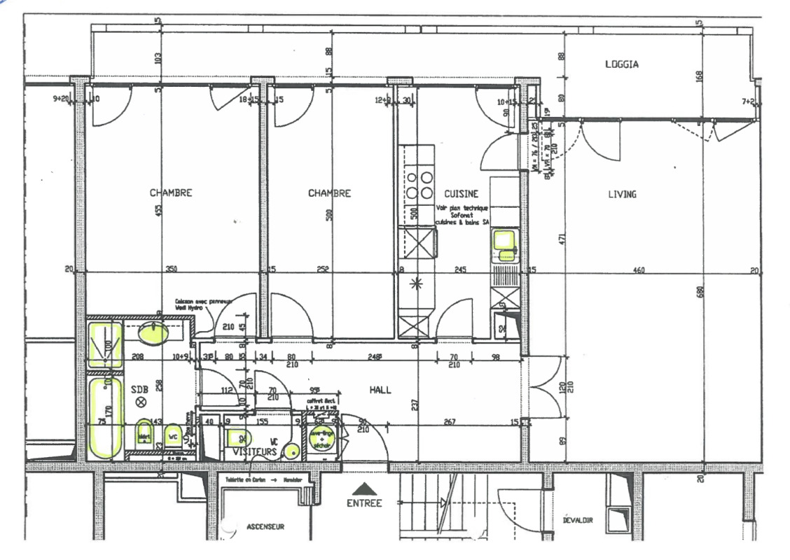
Situato a Champel, sulla route de Florissant di fronte al Parc Bertrand, questo bellissimo appartamento luminoso, spazioso, ben mantenuto e confortevole con una superficie abitabile di 119 m2 si trova al 3° piano di un condominio di lusso in una zona tranquilla e verdeggiante.
L’appartamento gode di una piacevole distribuzione con un balcone comunicante di oltre 18 m2 e si compone come segue:
- Ampio ingresso in marmo
- Spazioso e luminoso soggiorno con accesso al balcone
- Cucina chiusa e completamente attrezzata con frigorifero e congelatore di grandi dimensioni, lavastoviglie, microonde e zona pranzo con accesso al balcone
- Due camere da letto con accesso al balcone
- Grande bagno/WC, vasca e doccia
- WC ospiti con lavandino
- Lavanderia privata con lavatrice e asciugatrice
L’edificio è sicuro e un portiere residente si occupa della proprietà condominiale.
Un locale per le biciclette, una lavanderia comune e una cantina completano questo immobile.
Questo appartamento gode di una vicinanza diretta a tutte le comodità, ovvero negozi (coop & Migros), ristoranti, banche, parrucchieri, scuole (pubbliche e private) e mezzi di trasporto pubblico (autobus 8 & 20).
****************
Spese di agenzia in aggiunta.
Comodità
Esterno
- Balcone/i
- Calmo/tranquillo
Dotazione
- Lavatrice
Stato
- Molto buono















